Beschrijving

Ben je op zoek naar een sfeervolle woning met karakter én mogelijkheden? Deze charmante geschakelde woning uit 1938 is gelegen op een rustige en fijne locatie en beschikt over een energielabel E. De woning biedt veel lichtinval, praktische ruimtes en een verrassende indeling met extra mogelijkheden.

Highlights
	• Kunststof kozijnen met dubbel glas
	• Multifunctionele aanbouw
        • Vernieuwde meterkast
        • Half open keuken, vernieuwd in 2024
	• 2 slaapkamers op de eerste verdieping
        • Verassend veel extra ruimtes
	• Tuin op het oosten
	• Rustige ligging in een groen hofje met open uitzicht
	• Centrum van Axel op korte afstand

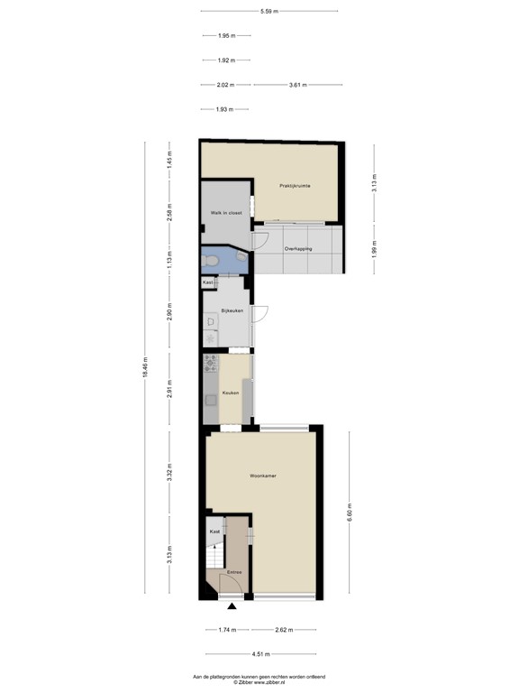
Begane grond
Via de entree kom je binnen in de open woonkamer, die naadloos overgaat in de eetkamer. Dankzij de grote raampartijen geniet je hier van veel natuurlijk licht, wat zorgt voor een aangename en ruime sfeer.
De keuken is voorzien van inbouwapparatuur en staat in verbinding met de praktische bijkeuken. Vanuit de bijkeuken heb je toegang tot de achtertuin.

Via de tuin bereik je de aanbouw, die beschikt over een inloopkast en een extra kamer. Deze ruimte is multifunctioneel en kan bijvoorbeeld dienen als hobbyruimte, kantoor of extra slaapkamer.

Eerste verdieping
Op de eerste verdieping bevinden zich twee slaapkamers en de badkamer. De badkamer is uitgerust met een ligbad en biedt voldoende comfort. Daarnaast is er een aparte kamer aanwezig die momenteel in gebruik is als inloopkast.

Buitenruimte
De woning beschikt over een tuin gelegen op het oosten, waardoor je in de ochtend en vroege middag heerlijk van de zon kunt genieten. Vanuit de tuin heb je direct toegang tot de praktische aanbouw, wat het gebruiksgemak vergroot.

Energie & comfort
De woning is voorzien van diverse voorzieningen op het gebied van comfort en isolatie:
	•	Energielabel E
	•	Zonwering aan de voorzijde van de woning
	•	Vrijwel geheel voorzien van dubbel glas (met uitzondering van de bijkeuken)

Woonomgeving
De woning is gelegen in een rustig en prettig hofje met een groen grasveld direct voor de deur, wat zorgt voor een open en ruimtelijk gevoel. De omgeving is ideaal voor zowel gezinnen als rustzoekers. Er is voldoende openbaar parkeergelegenheid in de directe nabijheid van de woning. Daarnaast bevinden supermarkten, scholen en een sportschool zich op korte afstand, evenals het centrum van Axel, waardoor alle dagelijkse voorzieningen binnen handbereik zijn.

Kortom
Een karakteristieke woning met verrassend veel ruimte en mogelijkheden, gelegen op een rustige locatie. Ideaal voor wie sfeervol wil wonen met alle voorzieningen dichtbij.

Kenmerken