Beschrijving

Aan de Bizetstraat 12 in Axel staat deze verzorgde hoekwoning uit, gelegen in een rustige en populaire woonwijk.

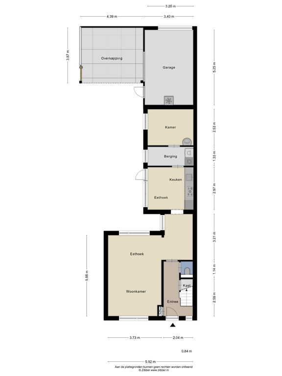
De woning beschikt over een praktische indeling met onder andere een lichte doorzonwoonkamer, een extra kamer op de begane grond en drie slaapkamers op de verdieping. Dankzij de goede isolatie, airco en diverse comfortabele voorzieningen biedt deze woning een fijne basis voor iedereen die prettig wil wonen op een rustige locatie.

Highlights

• Hoekwoning met garage en 4 slaapkamers
• Woonoppervlakte ca. 94 m²
• Energielabel C
• Voorzien van dak- gevel- en vloerisolatie
• Bijna volledig dubbel glas (slechts 1 raam niet)
• Volledig voorzien van rolluiken
• Airco in woon- en slaapkamer
• Extra kamer op de begane grond
• Recent gerenoveerde badkamer (2025)
• Tuin op het westen met overkapping
• Garage achter de woning
• Rustige woonomgeving in Axel

De begane grond beschikt over een lichte doorzonwoonkamer, voorzien van airco, met een prettige indeling voor een zit- en eethoek. De gesloten keuken biedt voldoende ruimte voor het plaatsen van een extra eettafel en staat in verbinding met de bijkeuken, waar zich de aansluitingen voor wasmachine en droger bevinden. Achter de bijkeuken ligt een extra kamer, ideaal te gebruiken als werk-, speel- of hobbyruimte. In de hal bij de voordeur bevindt zich het toilet.

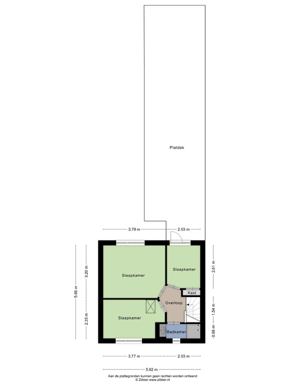
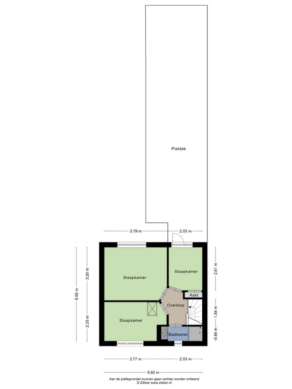
Op de eerste verdieping bevinden zich drie slaapkamers, allen voorzien van rolluiken. De badkamer is recent gerenoveerd (2025) en uitgevoerd met een douche en een wastafel met meubel. Daarnaast is er een praktische bergzolder aanwezig.

Energie & comfort

• Energielabel C
• CV-installatie (2024)
• Verwarming tevens mogelijk via airco (woon- en slaapkamer)
• Bijna volledig geïsoleerd
• Volledig rolluiken aanwezig

Woonomgeving
De woning is gelegen in een rustige en geliefde woonwijk in Axel. Basisschool, diverse winkels en horecagelegenheden bevinden zich op korte afstand. Ook zijn er in de omgeving mooie wandelroutes en is het openbaar vervoer goed bereikbaar.

Kortom
Een verzorgde, comfortabele, hoekwoning met een praktische indeling, extra kamer op de begane grond en een fijne tuin met garage, op een prettige locatie in Axel.

Kenmerken