Beschrijving

Ruime gezinswoning op loopafstand van de Westerschelde met royale aanbouw, grote tuin en veel potentie.

Aan de Monseigneur Luijpenstraat 1 in Hoofdplaat staat deze verrassend ruime en goed onderhouden gezinswoning met een royale aanbouw, een ruime tuin en volop mogelijkheden voor comfortabel wonen. Met een woonoppervlakte van circa 152 m², een zeer ruime begane grond en meerdere slaapkamers is dit een ideale woning voor wie ruimte en rust zoekt.

De woning is gebouwd in 1970 en in 2019 uitgebreid met een moderne aanbouw. Hierdoor is op de begane grond een bijzonder ruime en lichte leefomgeving ontstaan.

Begane grond

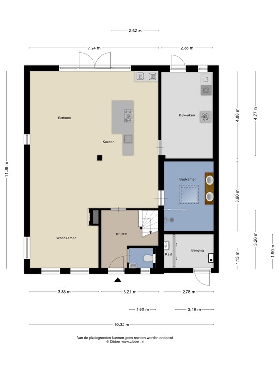
Via de entree kom je in de woning, vanwaar toegang is tot de royale woonkamer met aanbouw. De aanbouw is voorzien van vloerverwarming, wat zorgt voor extra comfort. Dankzij de ruime afmetingen is de ruimte flexibel in te delen en zeer geschikt voor een grote zithoek en eetgedeelte.

De aanbouw is constructief zo uitgevoerd dat het mogelijk is om hier in de toekomst een extra verdieping op te realiseren; de bijbehorende constructieberekening is aanwezig. De stalen draagbalken zijn strak in de muren weggewerkt en dragen bij aan de moderne uitstraling.

De keuken is geplaatst in 2019 en uitgevoerd met hoogwaardige Siemens Studioline inbouwapparatuur, waaronder een vaatwasser, combi-oven, stoomoven en 5-pits gaskookplaat. Daarnaast is de keuken voorbereid op elektrisch koken dankzij een loze leiding met kabel en een aparte groep. De afzuigkap is in de lamp verwerkt en is voorzien van een elektrisch filter.

De bijkeuken (14m2) biedt volop ruimte voor de wasmachine en de droger. 
Op de begane grond bevindt zich ook de vernieuwde badkamer van 11m2

Aan de voorzijde van de woning bevindt zich de berging/bijkeuken, waar ook de meterkast (vernieuwd in 2020) en de technische installaties zijn geplaatst. In 2022 is mechanische ventilatie aangelegd. Deze ruimte is praktisch in gebruik en biedt extra bergruimte, terwijl de hal en woonkamer vrij blijven van zichtbare techniek.

Eerste verdieping

Op de eerste verdieping bevinden zich meerdere slaapkamers met laminaat op de houten vloeren. De verdieping heeft een oppervlakte van circa 43,5 m² en biedt goed bruikbare kamers. De badkamer is vernieuwd in 2019 en uitgevoerd in een moderne, neutrale stijl.

Zolder

De zolder is bereikbaar via een vaste trap en biedt extra bergruimte en een compacte extra kamer met dakraam.

Tuin

De achtertuin op het westen is royaal van opzet en meet circa 13,8 meter diep en 12,97 meter breed. Achterin de tuin staat een degelijk gebouwd tuinhuis van 5,69 x 3,38 meter, voorzien van een 20 cm dikke betonvloer met dubbele wapening en elektra. Tegen de berging staat de overkapping van 4,1 x 6,9m). Aan de gevel van de uitbouw is een groot zonnescherm aanwezig met een uitval van circa 3 meter. De tuin biedt volop ruimte om te ontspannen, spelen of tuinieren.

Energie & comfort

De woning is voorzien van mahoni kozijnen met HR++ glas (2019), die in juni 2025 nog zijn geschilderd. In de aanbouw zijn vloer- en plafondisolatie toegepast met 10 cm PIR-platen. Ook is er dakisolatie aangebracht. De gehele riolering is vernieuwd in de woning. Bovendien is de gehele woning rondom voorzien van rolluiken.

Kortom

Een ruime en solide gezinswoning met een moderne aanbouw, grote tuin en veel leefruimte. Ideaal voor wie comfortabel wil wonen in een rustige omgeving.

Kenmerken