Beschrijving

Aan de Albertpolderstraat 22 in Sluiskil staat deze nette hoekwoning met garage, gelegen in een kindvriendelijke woonwijk. De woning bevindt zich aan een rustig grasveld met speeltuintje, wat het een ideale plek maakt voor gezinnen. Met een woonoppervlakte van circa 79 m², een perceel van 248 m² en een tuin op het oosten biedt deze woning volop mogelijkheden voor comfortabel wonen.

Highlights

• Drie slaapkamers
• Halfopen keuken met inbouwapparatuur (2022)
• Aangebouwde garage met elektriciteit
• Twee extra bergingen in de tuin
• Grotendeels voorzien van rolluiken
• Tuin op het oosten
• Bouwjaar 1963
• Woonoppervlakte circa 79 m²
• Gelegen in een kindvriendelijke woonwijk

Begane grond
Via de entree kom je binnen in de hal met toegang tot het toilet, de woonkamer en de keuken. De doorzonwoonkamer is een lichte en aangename ruimte dankzij de grote raampartijen aan zowel de voor- als achterzijde. Aan de voorzijde is de woonkamer voorzien van elektrische rolluiken.
De halfopen keuken is geplaatst in 2022 en voorzien van diverse inbouwapparatuur. Aansluitend bevindt zich de praktische bijkeuken met wasmachineaansluiting en extra bergruimte.

Eerste verdieping
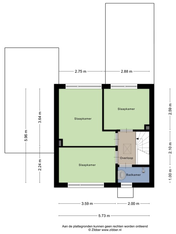
Op de eerste verdieping bevinden zich drie slaapkamers en de badkamer. De slaapkamers zijn praktisch ingedeeld en voorzien van handmatig bediende rolluiken.
De badkamer dateert uit de jaren ’80 en is voorzien van de benodigde basisvoorzieningen.

Tweede verdieping
Via een vlizotrap is de bergzolder bereikbaar. Deze ruimte is ideaal voor het opbergen van spullen.

Buitenruimte
De achtertuin is gelegen op het oosten en heeft een oppervlakte van circa 76 m². De tuin is deels betegeld en deels voorzien van een stukje gras, wat zorgt voor een fijne balans tussen onderhoud en groen.
Daarnaast beschikt de woning over een aangebouwde garage en twee losse bergingen, wat zorgt voor volop opslagmogelijkheden. De tuin is tevens bereikbaar via een achterom.

Energie & comfort

• Energielabel D
• HR-combiketel (Intergas) uit 2022
• Muurisolatie (2010)
• Hardhouten kozijnen met dubbel glas
• Meterkast vernieuwd in 2022 (11 groepen, uitbreidbaar)

Woonomgeving
De woning is gelegen in een rustige en kindvriendelijke woonwijk in Sluiskil. Direct voor de woning bevindt zich een grasveld met speeltuintje, wat zorgt voor een prettige en veilige speelomgeving voor kinderen. Daarnaast ligt een huisartsenpraktijk op loopafstand en zijn overige voorzieningen goed bereikbaar.

Kortom
Een praktische hoekwoning met drie slaapkamers, een moderne keuken, garage en ruime tuin op het oosten. De ligging aan een grasveld met speeltuin maakt dit een fijne woning voor starters en gezinnen.

Kenmerken