Beschrijving

Een huis met mogelijkheden, klaar voor jouw ideeën

Stel je eens voor… je parkeert de auto, stapt uit en voelt het meteen: hier kun je thuiskomen. In een rustige straat, met het gemak van voorzieningen in de buurt, staat deze tussenwoning aan de Visartstraat 9 in Sluiskil te wachten op een nieuwe eigenaar met visie. Iemand die kansen ziet, energie heeft en het leuk vindt om een woning stap voor stap eigen te maken.

Deze woning biedt je namelijk een stevige basis én volop ruimte om er iets moois van te maken. Niet alles is al af, maar dat is juist de charme. Je kunt hier jouw smaak en woonwensen helemaal laten spreken.

Bij binnenkomst valt direct de ruime hal op, voorzien van een praktische kelderkast en een apart toilet. Loop door naar de lichte woonkamer, waar de grote ramen zorgen voor een prettige lichtinval en een open gevoel. Zet je bank zo neer dat je uitkijkt over de straat terwijl je geniet van een goed boek of een rustige avond.

De open keuken grenst direct aan de woonkamer en is het ideale vertrekpunt voor een leefkeuken die bij jouw stijl past, modern, landelijk, stoer of juist warm en huiselijk. Aansluitend vind je een bijkeuken met toegang tot de schuur; een praktische ruimte die je kunt benutten voor opslag, hobby’s of zelfs een werkplaats.

Ruimte genoeg boven en buiten
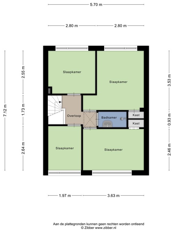
Op de eerste verdieping zijn er 4 slaapkamers, elk met potentie om in te richten naar jouw behoeften: een rustige master bedroom, kinderkamer, thuiskantoor of logeerkamer, jij kiest. De badkamer is eenvoudig, met een douche en wastafel, en biedt voldoende ruimte om te moderniseren.

Een bergzolder biedt extra opbergmogelijkheden en in de tuin kun je heerlijk in de zon zitten. Of je nu droomt van een groen hoekje, een fijn terras of een plek om met vrienden buiten te eten: de tuin biedt de vrijheid om dit zelf vorm te geven.

Visartstraat 9 is geen kant-en-klare woning, maar dat maakt het juist aantrekkelijk. Je kunt hier jouw eigen sfeer neerzetten, zonder compromissen. Van vloer tot wand, van keuken tot tuin, jij bepaalt de stijl, het tempo en het eindresultaat.

Zie jij de mogelijkheden? Laat je dan vooral inspireren door de sfeerfoto’s. Ze geven alvast een indruk van wat deze woning kan worden, met een beetje lef, liefde en creativiteit.

Nieuwsgierig geworden?
Bel of mail ons voor een bezichtiging. We laten je graag zien wat deze woning te bieden heeft. Dit is jouw kans op een betaalbare woning met potentie, een plek om van te houden, in te groeien, en vooral om helemaal eigen te maken.

Kenmerken