Beschrijving
Aan een rustig groenstrookje in Terneuzen, waar privacy en rust samenkomen met het gemak van alle voorzieningen dichtbij, staat aan de Bachlaan 39 deze verzorgde tussenwoning. Een fijne plek om thuis te komen, met scholen, openbaar vervoer, een overdekt winkelcentrum en sportfaciliteiten op loop- en fietsafstand. Bovendien is de woning duurzaam dankzij de acht zonnepanelen, kunststof kozijnen met HR++ glas en de aanwezigheid van rolluiken (bijna) rondom.
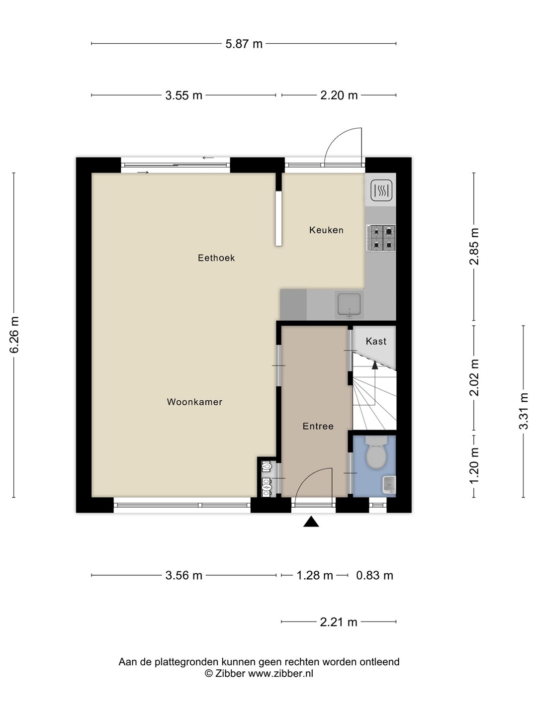
Je stapt binnen via de hal en loopt door naar de lichte woonkamer. Doordat er geen directe inkijk is vanaf de voorzijde, geniet je hier van veel privacy en een vrij gevoel. Aan de achterzijde zorgt de schuifpui voor de verbinding met de tuin en voor extra licht en ruimte. De open hoekkeuken is voorzien van inbouwapparatuur en vormt een prettige plek om te koken en in contact te blijven met de rest van het gezin of je gasten. In de hal bevindt zich het toilet.
Op de eerste verdieping zijn drie slaapkamers, allemaal voorzien van rolluiken, en een praktische badkamer met douche en een wastafel met meubel. Via een vaste trap is de ruime bergzolder bereikbaar, die ideaal is als extra opbergruimte.
De tuin is onderhoudsvriendelijk en sfeervol ingericht, een fijne plek om te ontspannen of gezellig te genieten van de buitenlucht. In de tuin staat bovendien een berging met aansluiting voor de wasmachine, waardoor je binnen extra ruimte overhoudt.
Bachlaan 39 is een verzorgde woning op een rustige locatie met veel privacy en tegelijkertijd alle dagelijkse voorzieningen binnen handbereik. Een ideale basis voor comfortabel wonen in Terneuzen. Benieuwd naar deze fijne woning? Neem dan snel contact met ons op voor een bezichtiging en ontdek zelf het woongenot dat dit huis te bieden heeft