Prijs | € 249.000,- k.k. |
Type object | Woonhuis, eengezinswoning, tussenwoning |
Perceeloppervlakte | 151 m² |
Woonoppervlakte | 92,7 m² |
Aanvaarding | In overleg |
Status | Onder bod |
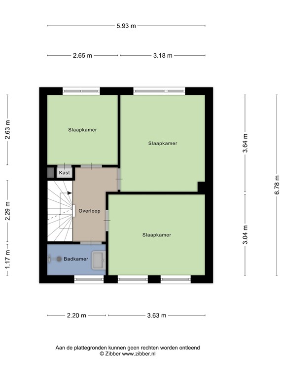
In een rustige straat staat deze gemoderniseerde en energiezuinige woning, die de afgelopen jaren met veel zorg is onderhouden. Dankzij kunststof kozijnen met dubbel glas, spouw- en dakisolatie en zeven zonnepanelen uit 2023 woon je hier comfortabel en duurzaam. Ook de Intergas HR-combiketel uit 2021 draagt bij aan zorgeloos wooncomfort. De woonkamer voelt licht en ruim aan door de grote raampartijen en de moderne afwerking met laminaatvloer, zwarte plinten en op maat gemaakte jaloezie aan de voorzijde. De keuken sluit mooi aan bij het leefgedeelte en biedt toegang tot de zonnige achtertuin op het westen, die volledig opnieuw is bestraat en een heerlijke plek vormt om te genieten. Ook buiten is veel gedaan: de schoorsteen is gerestaureerd en de nok van het dak is vervangen. Op de eerste verdieping bevinden zich drie slaapkamers met laminaatvloer en een badkamer met douche en wastafel. De zolderverdieping, bereikbaar via een vaste trap, biedt extra ruimte voor een slaapkamer, werk- of hobbykamer. Hier vind je ook handige inbouwkasten en een extra wasmachineaansluiting. Daarnaast is er een garage aanwezig die ideaal is voor fietsen, opslag of hobby’s. Kortom, een instapklare woning met oog voor detail, duurzaamheid en comfort. Helemaal klaar voor nieuwe bewoners.
Referentienummer | 108 |
Vraagprijs | € 249.000,- k.k. |
Elektra | € 37,- |
Gas | € 70,- |
Water | € 25,- |
Inrichting | Niet gestoffeerd |
Inrichting | Niet gemeubileerd |
Status | Onder bod |
Aanvaarding | In overleg |
Aangeboden sinds | Woensdag 24 september 2025 |
Laatste wijziging | Woensdag 8 oktober 2025 |
Type object | Woonhuis, eengezinswoning, tussenwoning |
Soort bouw | Bestaande bouw |
Bouwperiode | 1961 |
Dakbedekking | Dakpannen |
Type dak | Zadeldak |
Isolatievormen | Dakisolatie Dubbel glas Muurisolatie Spouwmuren |
Perceeloppervlakte | 151 m² |
Woonoppervlakte | 92,7 m² |
Woonkameroppervlakte | 23,46 m² |
Keukenoppervlakte | 6,92 m² |
Inhoud | 328 m³ |
Oppervlakte externe bergruimte | 21 m² |
Aantal bouwlagen | 3 |
Aantal kamers | 5 (waarvan 4 slaapkamers) |
Aantal badkamers | 1 (en 1 apart toilet) |
Ligging | Aan rustige weg Dichtbij openbaar vervoer In woonwijk Nabij school |
Type | Achtertuin |
Hoofdtuin | Ja |
Oriëntering | West |
Heeft een achterom | Ja |
Staat | Normaal |
Tuin 2 - Type | Achtertuin |
Tuin 2 - Oriëntering | Oosten |
Tuin 2 - Staat | Normaal |
Energielabel | B |
CV ketel | Intergas HRE |
Warmtebron | Gas |
Bouwjaar | 2021 |
Combiketel | Ja |
Eigendom | Eigendom |
Warm water | CV-ketel |
Verwarmingssysteem | Centrale verwarming |
Ventilatie methode | Natuurlijke ventilatie |
Keukenvoorzieningen | Inbouwapparatuur |
Badkamervoorzieningen | Douche Wastafel Wastafelmeubel |
Parkeergelegenheid | Vrijstaande stenen garage |
Glasvezelaansluiting aanwezig | Ja |
Tuin aanwezig | Ja |
Heeft een garage | Ja |
Beschikt over een internetverbinding | Ja |
Heeft een dakraam | Ja |
Heeft zonnepanelen | Ja |
Kadastrale aanduiding | Terneuzen D 655 |
Perceeloppervlakte | 151 m² |
Omvang | Geheel perceel |
Eigendomsituatie | Eigen grond |