| Prijs | € 599.000,- k.k. |
| Type object | Eengezinswoning, woonhuis, vrijstaande woning |
| Perceeloppervlakte | 545 m² |
| Woonoppervlakte | 172 m² |
| Aanvaarding | In overleg |
| Status | Verkocht |
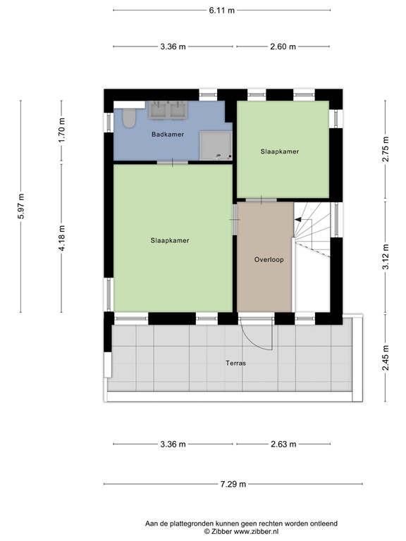
Welkom in deze prachtige vrijstaande gezinswoning aan de Ooievaar 7 in het geliefde Terneuzense Othene. Of je nu aan gezinsuitbreiding denkt of juist gewoon wat meer woonruimte zoekt, in deze woning kan het allemaal! Zodra je de voordeur opent, voel je meteen de ruimte. Die ruime hal nodigt je uit om even rustig je jas op te hangen, kinderschoenen te laten rondslingeren, of snel naar boven te sprinten om iedereen te begroeten. Ben jij iemand die van lekker leven houdt, dan zit je hier gebakken. De woonkamer is ruim én superlicht door de grote ramen en schuifpui naar de zonnige achtertuin. Gooi die deur open, plof met je ontbijtje aan de bar in de open keuken, of maak een chillhoekje waar je kinderen kunnen spelen of waar je zelf rustig kunt thuiswerken. Zo’n fijne ruimte groeit gewoon met je mee, wat er ook speelt in je leven. Een open keuken die je uitnodigt om te kokkerellen, te proosten of samen te ontbijten, deze bar is ideaal voor een snelle start. Vanuit de keuken wandel je zo de bijkeuken in. Je wasmachine, droger, extra vriezer kwijt? Geen punt. Hier is plaats zat én alles staat lekker praktisch uit het zicht. En via de bijkeuken duik je zo de garage in, voor je fiets, je auto, of die hobby waar je altijd al eens tijd voor wou maken. En dan die slaapkamers… boven is er plek voor iedereen. Op de eerste verdieping wachten drie fijne slaapkamers, gezellig en ruim. De grote badkamer heeft een dubbele wastafel, inloopdouche, ligbad en toilet. Geen eindeloze wachtrijen in de ochtend, maar ontspannen je dag beginnen. Op de tweede verdieping vind je nog eens twee royale slaapkamers. Eén ervan heeft zelfs een eigen badkamer met dubbele wastafel, inloopdouche en toilet. Hoe luxe wil je het hebben? De tuin is ruim, zonnig en op het zuiden gelegen. Stel je voor: zomers barbecueën, kinderen die ravotten in het gras, een moestuintje aanleggen, of gewoon lekker in de loungehoek relaxen met een goed boek of een wijntje. Ondertussen pakken de zonnepanelen en het energielabel A hun voordeel: goed voor je portemonnee. Alles klopt hier gewoon. Deze wijk wordt niet voor niets als populair bestempeld. Je bent zó bij de basisschool, haalt verse broodjes bij de bakker of wipt snel even bij de supermarkt binnen. Voor wat extra ontspanning wandel je langs de Otheense Kreek of pak je de zeedijk bij de Westerschelde mee; natuur, kindvriendelijke straten en alle voorzieningen zijn onder handbereik. Het leven is hier, zoals jij dat wilt. Zie jij jezelf al wonen aan de Ooievaar? Dit vrijstaande droomhuis bruist van de energie en wacht op mooie nieuwe herinneringen. Pak je kans en kom snel kijken. Wie weet voel jij je hier straks helemaal thuis!
| Vraagprijs | € 599.000,- k.k. |
| Status | Verkocht |
| Aanvaarding | In overleg |
| Aangeboden sinds | Dinsdag 9 december 2025 |
| Laatste wijziging | Donderdag 5 maart 2026 |
| Type object | Eengezinswoning, woonhuis, vrijstaande woning |
| Soort bouw | Bestaande bouw |
| Bouwjaar | 2005 |
| Dakbedekking | Bitumen |
| Type dak | Platdak |
| Isolatievormen | Dakisolatie Dubbel glas Muurisolatie Vloerisolatie Volledig geïsoleerd |
| Perceeloppervlakte | 545 m² |
| Woonoppervlakte | 172 m² |
| Woonkameroppervlakte | 46 m² |
| Inhoud | 750 m³ |
| Oppervlakte overige inpandige ruimten | 31 m² |
| Oppervlakte gebouwgebonden buitenruimte | 27 m² |
| Tuinoppervlakte | 377 m² |
| Aantal bouwlagen | 3 |
| Aantal kamers | 6 (waarvan 5 slaapkamers) |
| Ligging | Aan water In woonwijk Open ligging Vrij uitzicht |
| Type | Achtertuin |
| Hoofdtuin | Ja |
| Oriëntering | Zuiden |
| Heeft een achterom | Ja |
| Staat | Normaal |
| Tuin 2 - Type | Achtertuin |
| Tuin 2 - Staat | Normaal |
| Tuin 3 - Type | Voortuin |
| Tuin 3 - Staat | Normaal |
| Energielabel | A |
| Combiketel | Ja |
| Aantal parkeerplaatsen | 2 |
| Warm water | CV-ketel |
| Badkamervoorzieningen Badkamer 1 | Douche Dubbele wastafel Ligbad Toilet Wastafelmeubel |
| Badkamervoorzieningen Badkamer 2 | Douche Dubbele wastafel Toilet Wastafel Wastafelmeubel |
| Tuin aanwezig | Ja |
| Kadastrale aanduiding | Terneuzen T 1269 |
| Perceeloppervlakte | 545 m² |
| Omvang | Geheel perceel |
| Eigendomsituatie | Eigen grond |