Beschrijving

Aan de Peter van Anrooylaan 27 in Terneuzen staat deze verzorgde en praktisch ingedeelde tussenwoning.

De woning is netjes onderhouden en uitgevoerd met kunststof kozijnen, voorzien van inzethorren en rolluiken aan de achterzijde, wat bijdraagt aan comfortabel en onderhoudsarm wonen. Gelegen aan een rustige weg en geschikt voor zowel starters als gezinnen die prettig willen wonen met een functionele indeling en een volwaardige zolderverdieping.

Highlights

• Woonoppervlakte ca. 85 m²
• 3 slaapkamers
• Volwaardige zolderverdieping
• Kunststof kozijnen
• Inzethorren aanwezig
• Elektrische rolluiken aan de achterzijde
• Stenen berging
• Energielabel C
• Rustige woonomgeving in Terneuzen

De begane grond beschikt over een doorzonwoonkamer met een prettige lichtinval en een duidelijke scheiding tussen zit- en eetgedeelte. De ruimte is praktisch ingedeeld en biedt voldoende plaats voor een comfortabele zithoek en eethoek.

De keuken is uitgevoerd als dichte keuken en functioneel ingericht. De keuken is voorzien van:

• 4-pits gaskookplaat
• Oven
• Bosch vaatwasser (circa 2021)
• Liebherr koelkast met kleine vriezer (circa 2021)
• De magnetron is ter overname beschikbaar

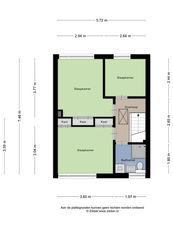
Op de eerste verdieping bevinden zich drie slaapkamers, allen praktisch van formaat. De slaapkamers zijn voorzien van inzethorren (met uitzondering van het badkamerraam en het bovenraam in de keuken). De televisie blijft achter, wat direct gebruiksgemak biedt. De badkamer is bereikbaar vanaf de overloop en is functioneel ingericht met douche, wastafel en toilet. De wasmachine is ter overname beschikbaar.

Via een vlizo-trap is de zolder bereikbaar. Deze verdieping is geïsoleerd met glaswol en afgewerkt met gipsplaten, wat zorgt voor extra comfort. De zolder is voorzien van een dakraam en biedt ruimte voor een extra slaapkamer, werk- of hobbyruimte en bergruimte.

Energie & comfort

• Energielabel C
• Kunststof kozijnen
• Inzethorren
• Elektrische rolluiken aan de achterzijde
• Dakisolatie (glaswol)
• Verwarming en warm water via CV-combiketel (Nefit Proline HRC 24/CW4, 2014)
• Wasmachine en magnetron ter overname beschikbaar (2018)

De woning beschikt over een externe stenen berging, ideaal voor fietsen, opslag en tuinbenodigdheden.
Gelegen aan een rustige weg in een woonwijk van Terneuzen. In de directe omgeving zijn diverse voorzieningen zoals winkels, scholen en openbaar vervoer goed bereikbaar.

Kortom

Een nette en onderhoudsvriendelijke tussenwoning met kunststof kozijnen, drie slaapkamers, zolder en berging. Ideaal voor wie comfortabel wil wonen in een rustige woonomgeving van Terneuzen.

Kenmerken