Beschrijving

Welkom aan de Rossinistraat 30 , een fijne basis, klaar om jouw thuis te worden

Stap binnen in deze keurige twee-onder-een-kapwoning in de geliefde wijk Oudelandse Hoeve in Terneuzen. Een rustige, kindvriendelijke buurt waar je alle voorzieningen binnen handbereik hebt, terwijl je toch heerlijk vrij woont.

De nette, onderhoudsvriendelijke voortuin heet je welkom. Via de ruime hal met een keurig toilet stap je de doorzon woonkamer binnen. Meteen valt het royale licht op dat door de grote ramen naar binnen valt, hier kun je eindeloos schuiven met jouw meubels en ideeën. De gesloten keuken grenst aan de woonkamer en biedt alle mogelijkheden: wil je de keuken liever open en ruim, dan is dit eenvoudig te realiseren. Zo maak je er direct jouw eigen plek van.

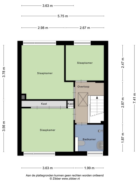
Op de eerste verdieping vind je drie slaapkamers, waarvan twee ruim genoeg zijn voor een comfortabel tweepersoonsbed. Ideaal voor een gezin, thuiskantoor of logeerkamer. De badkamer is praktisch ingedeeld met een tweede toilet, douche en wastafel, netjes en functioneel, maar ook eenvoudig naar eigen smaak te moderniseren. Een bergzolder biedt extra opslagruimte: handig voor seizoensspullen of als extra hobbyruimte.

Buiten geniet je van een diepe tuin op het noordoosten. Achterin vind je een ruime berging, ideaal voor fietsen, tuingereedschap of klusprojecten. Direct aan het huis is nog een tweede berging, perfect te gebruiken als bijkeuken of extra opbergruimte.

De garage grenst direct aan de woning en samen met de oprit is parkeren altijd een gemak. Wat deze woning helemaal toekomstbestendig maakt: de kunststof kozijnen met dubbel glas, 12 zonnepanelen én gevel- en vloerisolatie zorgen voor een goede basis. Het energielabel volgt nog, maar de voorbereidingen voor een duurzame woning zijn al getroffen.

Rossinistraat 30 is een fijne, degelijke woning die je volledig naar jouw eigen smaak kunt afwerken. De basis is goed, het onderhoud is keurig en de ligging is ideaal, hier kun je direct wonen en stap voor stap jouw droomhuis creëren.

Ben je benieuwd? Kom langs, loop door de ruimtes en ontdek zelf hoe je hier jouw nieuwe thuis kunt maken.

Kenmerken