Beschrijving
Aan de Bernard Zweerslaan 40 in Terneuzen staat deze geschakelde woning uit 1967, gelegen in een leuke en kindvriendelijke woonwijk in Terneuzen Zuid. De woning bevindt zich in een rustige omgeving met een prettige woonomgeving. Met diverse voorzieningen zoals een supermarkt, sportfaciliteiten en het centrum van Terneuzen op fietsafstand, is dit een zeer praktische locatie. Met een woonoppervlakte van circa 89 m², een ruime tuin waar je altijd zon hebt en de mogelijkheid tot vier slaapkamers, biedt deze woning volop kansen voor comfortabel wonen.
Highlights
• Vier slaapkamers (inclusief zolder)
• Alle verdiepingsvloeren beton
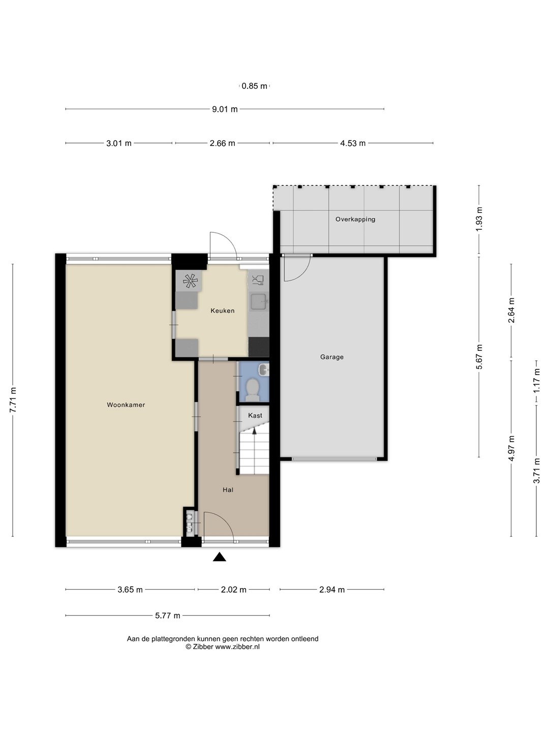
• Garage aan de woning vast
• Spouwmuurisolatie (2023)
• Vernieuwde meterkast (2017)
• Gevelrenovatie van de voegen (2008)
• Tuin op het noorden met altijd zon, vrij gelegen zonder inkijk van achterburen
• Twee slaapkamers met inbouwkasten
• Bouwjaar 1967
• Woonoppervlakte circa 89 m²
• Kunststof kozijnen
Begane grond
Via de entree kom je binnen in de hal met toiletruimte, waarna je toegang hebt tot de woonkamer en keuken. De woonkamer is een lichte ruimte dankzij de grote raampartijen en heeft een praktische indeling, waardoor deze gemakkelijk in te richten is. De keuken heeft een eenvoudige maar nette uitstraling en is voorzien van losse apparatuur.
Eerste verdieping
Op de eerste verdieping bevinden zich drie slaapkamers, waarvan twee zijn voorzien van praktische inbouwkasten. Daarnaast is de badkamer ingericht met een lavet en aansluiting voor de wasmachine.
Tweede verdieping
De zolder is bereikbaar via een vlizotrap en biedt de mogelijkheid tot een extra slaapkamer. Dankzij de twee aanwezige dakramen is er voldoende daglicht, wat deze ruimte geschikt maakt voor meerdere doeleinden, zoals een slaap- of werkruimte.
Buitenruimte
De achtertuin is gelegen op het noorden waar je altijd kunt genieten van de zon en heeft een oppervlakte van circa 83 m². De tuin is verzorgd en netjes onderhouden en bestaat uit een goede mix van groen en bestrating. Daarnaast is er een afdakje aanwezig, evenals een berging en een deur naar de garage. De tuin beschikt bovendien over een achterom en is vrij gelegen zonder inkijk van achterburen.
Energie & comfort
• Energielabel C
• Spouwmuurisolatie (2023)
• HR-combiketel (Intergas)
• Volledig geïsoleerd
• Voorzien van HR-glas
• Kunststof kozijnen
Woonomgeving
De woning is gelegen in een rustige en kindvriendelijke wijk in Terneuzen Zuid. Op loopafstand bevinden zich diverse voorzieningen zoals een supermarkt, sportcentrum, tennisbaan en winkelcentrum. Het centrum van Terneuzen is binnen circa 10 minuten fietsen bereikbaar en de uitvalswegen zijn snel te bereiken, wat zorgt voor een goede bereikbaarheid.
Kortom
Een nette en functionele geschakelde woning met garage, vier (mogelijke) slaapkamers en een verzorgde tuin. Gelegen in een rustige en kindvriendelijke woonomgeving met alle voorzieningen binnen handbereik, is dit een ideale woning voor wie praktisch en comfortabel wil wonen.