Beschrijving
Aan de Merwedelaan 28 in Terneuzen staat deze goed onderhouden tussenwoning uit 1975 met berging, zonnepanelen en een praktische indeling. De woning beschikt over 3 ruime slaapkamers een aparte wasruimte, een vaste trap naar zolder, airconditioning op de begane grond en acht zonnepanelen (2023).
De woning is voorzien van dakisolatie, isolerende beglazing en een HR-combiketel uit 2019. Met energielabel C (afgegeven vóór plaatsing van de zonnepanelen) en een rustige ligging is dit een fijne woning voor starters en gezinnen.
Highlights
• Bouwjaar 1975
• 8 zonnepanelen (430 Wp per paneel, geplaatst juni 2023)
• Rondom rolluiken
• HR-combiketel (Intergas, 2019)
• Airco op de begane grond (Daikin, 2024)
• Dakisolatie (2007)
• Hardhouten kozijnen (2024 geschilderd) met isolerende beglazing (dubbel glas en HR)
• Meterkast vernieuwd (2014)
• Open keuken (2006) met stalen balk (2014)
• Badkamer vernieuwd (circa 2016) - is toen verplaatst naar slaapkamer
• Aparte wasruimte op de 1e verdieping
• Stenen berging in de tuin
• Glasvezel aanwezig
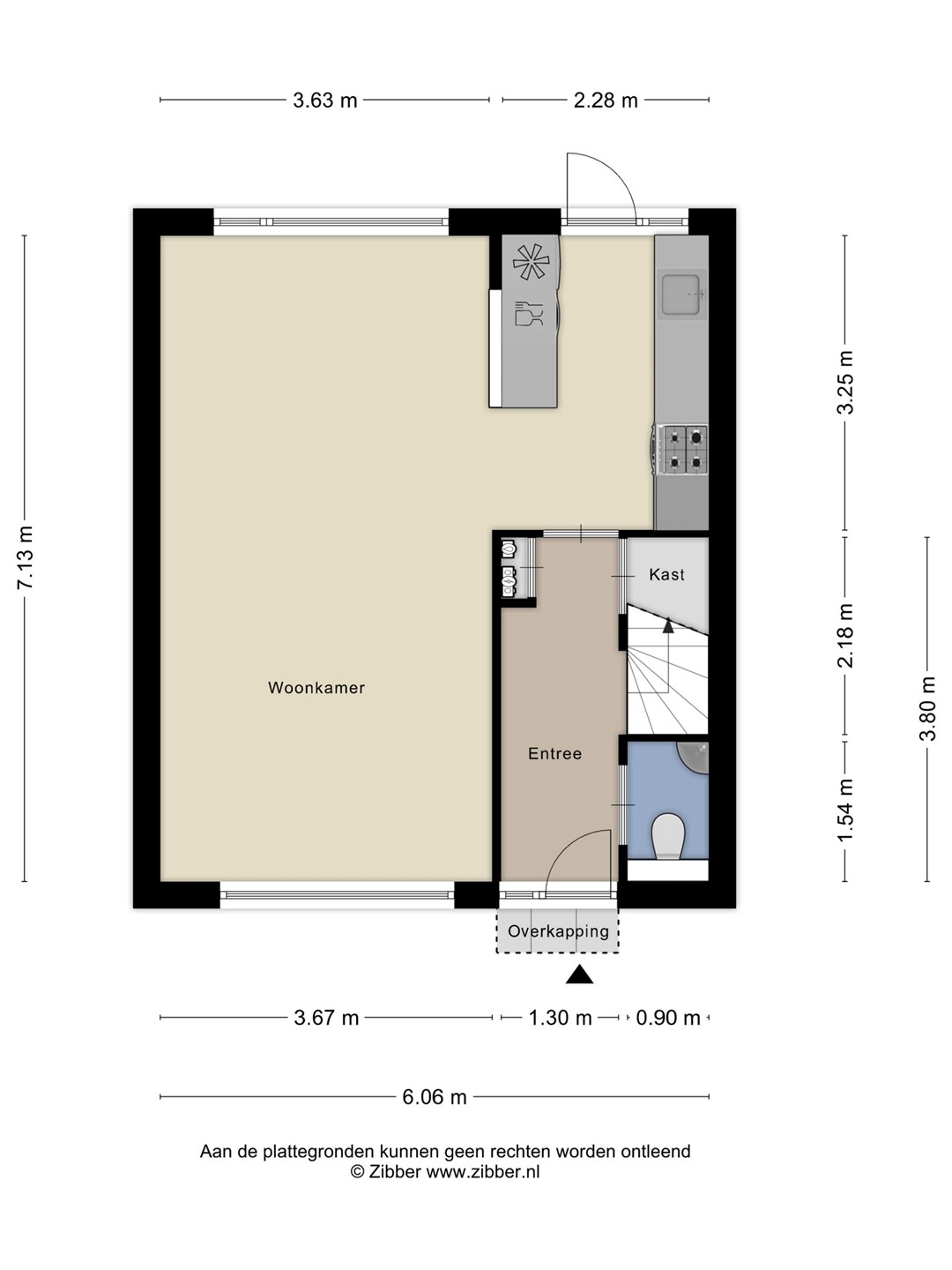
Entree met hal, meterkast (vernieuwd in 2014) en toiletruimte. De lichte woonkamer heeft een prettige indeling en staat in open verbinding met de keuken. In 2014 is een stalen balk geplaatst waardoor een open keuken is gerealiseerd.
De keuken dateert van circa 2006 en is voorzien van inbouwapparatuur (eveneens circa 2006). Vanuit de woonkamer is de tuin bereikbaar.
Op de eerste verdieping bevinden zich twee ruime slaapkamers, de badkamer (circa 2016) en een aparte waskamer.
De badkamer is volledig betegeld en voorzien van een douchecabine, toilet, wastafelmeubel en designradiator. Dankzij het raam is er natuurlijke ventilatie en daglicht aanwezig.
Via een vaste trap is de zolderverdieping bereikbaar. Hier bevindt zich een extra slaapkamer en de opstelling van de cv-ketel (Intergas, 2019). De zolder is geïsoleerd (2007).
Energie & comfort
• Energielabel C (afgegeven vóór plaatsing zonnepanelen)
• 8 zonnepanelen (ca. 3.200 kWh opbrengst per jaar)
• Rondom rolluiken
• HR-combiketel (2019)
• Airco begane grond (2024)
• Dakisolatie
• Isolerende beglazing
De achtertuin is gelegen op het noordoosten en beschikt over een berging. Een praktische buitenruimte met voldoende mogelijkheden voor zit- en speelgelegenheid.
Kortom een verzorgde tussenwoning met zonnepanelen, airco en drie slaapkamers (waarvan één op zolder), gelegen in Terneuzen. Een fijne woning met een praktische indeling en energiezuinige voorzieningen.
Interesse? Plan snel een bezichtiging en ontdek de mogelijkheden van Merwedelaan 28.