Beschrijving
Welkom bij Peter van Anrooylaan 232, een verrassend royaal appartement op de derde verdieping in de geliefde wijk Oudelandse Hoeve in Terneuzen. Hier woon je rustig, met alle voorzieningen dichtbij én de natuur om de hoek.
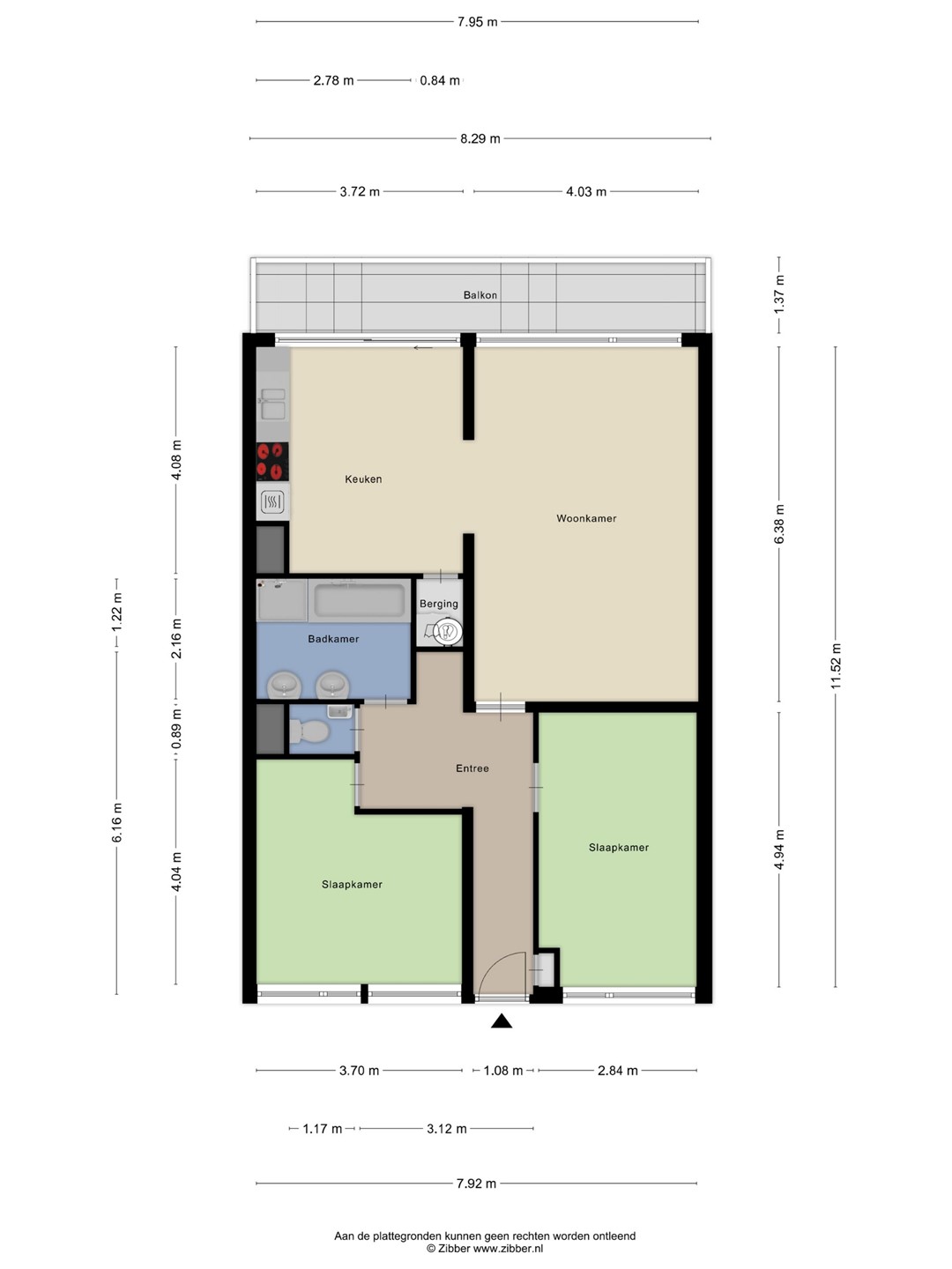
Via de ruime hal, waar ook het toilet zich bevindt, loop je door naar de lichte woonkamer. Het grote raam, dat deels tot aan de grond reikt, laat het daglicht heerlijk binnenstromen en versterkt het gevoel van ruimte. Een heerlijke plek om je dag te beginnen of juist rustig af te sluiten.
De open keuken sluit perfect aan op de woonkamer en biedt genoeg plek voor een gezellige eethoek. Koken, tafelen en samen zijn lopen hier moeiteloos in elkaar over. Via de grote schuifpui haal je het buitenleven naar binnen en stap je zo op het ruime balkon op het zuidwesten. De ideale plek om in de middag- en avondzon te genieten met een kop koffie of een goed glas wijn.
Het appartement beschikt over twee ruime slaapkamers aan de koele noordoostzijde, heerlijk voor een goede nachtrust. De badkamer is compleet met een ligbad, douche en dubbele wastafel. Hier ligt nog alle ruimte om met een persoonlijke update je eigen sfeer en comfort toe te voegen.
De ligging is ideaal: winkelcentrum Zuidpolder is op loopafstand en ook de Otheense Kreek ligt vlakbij, perfect voor een mooie wandeling of een rondje hardlopen. Met een ligging op de derde verdieping woon je hier net wat hoger, met mooi zicht op de omgeving en volop privacy.
Peter van Anrooylaan 232 is een heerlijk licht en ruim appartement met een sterke basis, waar je met een paar persoonlijke accenten helemaal jouw eigen plek van maakt.
Benieuwd naar de mogelijkheden? Maak een afspraak en ontdek zelf hoe fijn het hier wonen is!