Beschrijving
Aan de Robijnboog 26 in Terneuzen staat deze verzorgde en goed onderhouden geschakelde woning met garage, serre en een fijne ligging aan het water.
De woning is volledig geïsoleerd, voorzien van 12 zonnepanelen en beschikt over een prettige indeling met onder andere vier slaapkamers en een bijkeuken. Gelegen in de populaire en kindvriendelijke wijk Othene, is dit een ideale woning voor starters, doorstromers en gezinnen die comfortabel en energiezuinig willen wonen.
Highlights
• Energielabel A
• 12 zonnepanelen (eigendom)
• Volledig geïsoleerd
• Houten kozijnen met HR glas
• Volledig voorzien van rolluiken
• Serre aan de woonkamer
• Houten overkapping achterin de tuin
• Garage (ruim, ook geschikt als berging)
• Praktische bijkeuken
• Achtertuin gelegen aan het water
• Speelvoorziening in de straat
• Kindvriendelijke en populaire woonwijk Othene
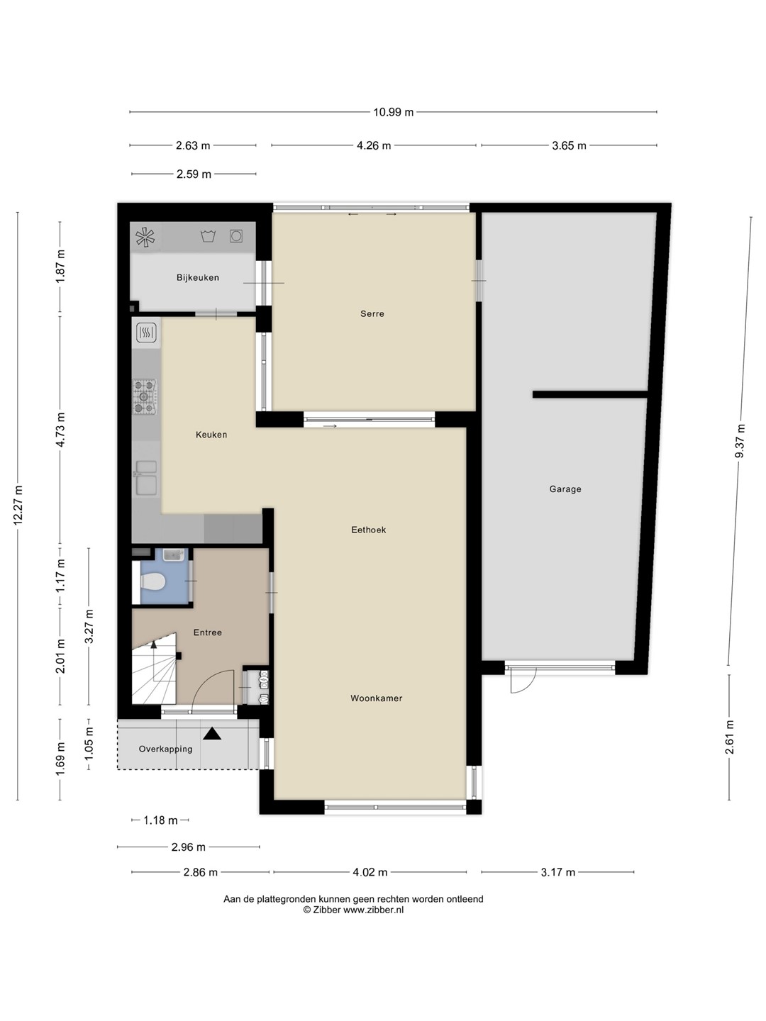
De begane grond beschikt over een lichte en sfeervolle woonkamer met een prettige indeling en veel daglicht. De serre aan de achterzijde vormt een mooie verlenging van de leefruimte en biedt zicht op de tuin.
De halfopen keuken is voorzien van inbouwapparatuur en staat in directe verbinding met de woonkamer. Vanuit de keuken is de handige bijkeuken bereikbaar, ideaal voor het plaatsen van de wasmachine en extra bergruimte.
De hal biedt toegang tot het toilet en de trapopgang.
Op de eerste verdieping bevinden zich twee ruime slaapkamers en een complete badkamer. De badkamer is ingericht met een dubbele wastafel, douche en toilet en is praktisch bereikbaar vanaf de overloop.
De zolderverdieping biedt nog eens twee ruime slaapkamers, waardoor de woning in totaal over vier volwaardige slaapkamers beschikt. Deze verdieping is uitermate geschikt voor een groter gezin, mensen die thuiswerken of hobbyruimte kunnen gebruiken.
Energie & comfort
• 12 zonnepanelen (eigendom)
• Volledig geïsoleerde woning
• Houten kozijnen met HR glas
• Rolluiken rondom voor extra comfort en privacy
• CV-installatie (2019)
Woonomgeving
De woning is gelegen in een rustige straat in de geliefde wijk Othene, met een speeltuintje in de directe omgeving. Scholen, supermarkt en overige voorzieningen bevinden zich op korte afstand, wat deze locatie bijzonder geschikt maakt voor gezinnen.
Kortom
Een ruime en energiezuinige gezinswoning met vier slaapkamers, serre, garage en een mooie ligging aan het water. Een ideale woning voor wie comfortabel wil wonen in een rustige en kindvriendelijke woonomgeving in Terneuzen.