Beschrijving
Loop je mee door deze prachtige, luxe woning? Deze vrijstaande eengezinswoning is een pareltje en ligt in de wijk Othene in Terneuzen. Met een bouwjaar van 2012 weet deze woning modern comfort te combineren met een landelijke uitstraling, gelegen aan een heerlijk rustige doodlopende weg.
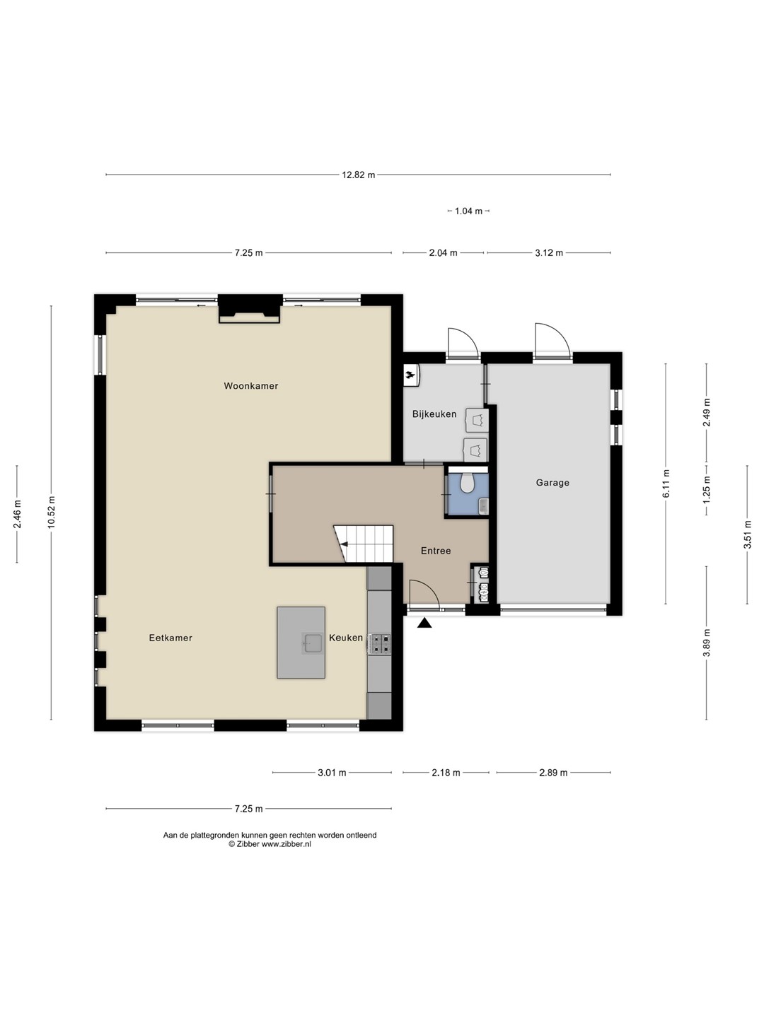
Binnenkomend via de ruime hal met schitterende hardstenen vloertegels, wordt meteen duidelijk: ruimte en licht voeren hier de boventoon. De grote woonkamer met gezellige haard biedt mooi uitzicht op de achtertuin, waar privacy centraal staat. Grenzend aan de woonkamer vind je de open leef keuken met inbouwapparatuur, compleet met spoeleiland en een gezellig barretje. Daarnaast is er voldoende ruimte voor een royale eettafel. De bijkeuken is handig voor je wasmachine en droger, en een toilet in de hal maakt het plaatje compleet.
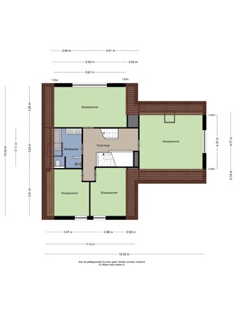
Op naar boven! Daar vind je een prachtige badkamer met inloopdouche, ligbad, dubbele wastafel en toilet, en niet te vergeten, een groot dakraam dat zorgt voor een heerlijke sfeer. Met vier slaapkamers is er genoeg ruimte voor iedereen. De zolder is nu nog een handige berging, maar zou gemakkelijk omgetoverd kunnen worden tot een vijfde slaapkamer.
De kers op de taart is de tuin rondom de woning, gelegen op het zonnige zuiden. Een zwembad en een overkapping met berging maken het plaatje helemaal compleet. In deze tuin geniet je van alle rust en ruimte, waar je heerlijk kunt ontspannen.
Met een energielabel A is deze woning volledig geïsoleerd en voorzien van HR++ glas, kunststof kozijnen en vloerverwarming (zelfs in de garage). De warmte terug win installatie zorgt ervoor dat je hier duurzaam en zuinig kunt leven, zonder in te leveren op comfort.
Ben je op zoek naar een woning die volop ruimte biedt? Dan is deze ruime, luxe woning een droom die werkelijkheid kan worden. Geniet van de moderne gemakken in een landelijke setting. Kom snel een kijkje nemen en laat je betoveren door alles wat Tjalk 4 te bieden heeft!