Beschrijving
Aan de Tuinstraat 10 in Terneuzen staat deze verzorgde en sfeervolle eindwoning uit 1948, gelegen in een rustige straat op korte afstand van het centrum.
De woning is in 2020 grondig gerenoveerd en beschikt over een prettige indeling met een karakteristieke woonkamer en suite, drie slaapkamers en maar liefst twee badkamers. Dankzij de strakke afwerking, goede isolatievoorzieningen en energielabel C is dit een instapklare woning die past bij wie comfortabel en centraal wil wonen.
Highlights
• Eindwoning
• Woonoppervlakte ca. 97 m²
• Energielabel C
• Dak-, vloer- en gevelisolatie
• Vrijwel volledig voorzien van dubbel/HR glas (muv klein raam op bergzolder)
• Rolluiken aan de zuidzijde
• Volledig gerenoveerd in 2020
• Nieuwe keuken en badkamers (2020)
• Twee badkamers, waarvan één op de begane grond
• Woonkamer en suite met sfeervolle schuifdeuren
• Drie slaapkamers
• Rustige ligging nabij het centrum
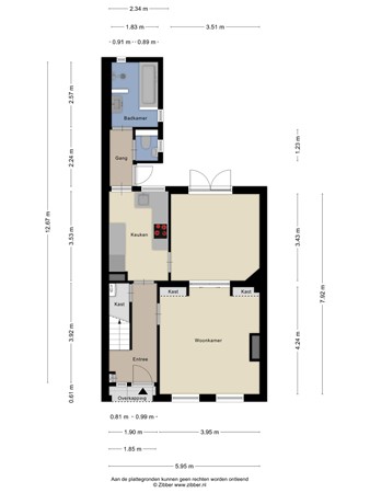
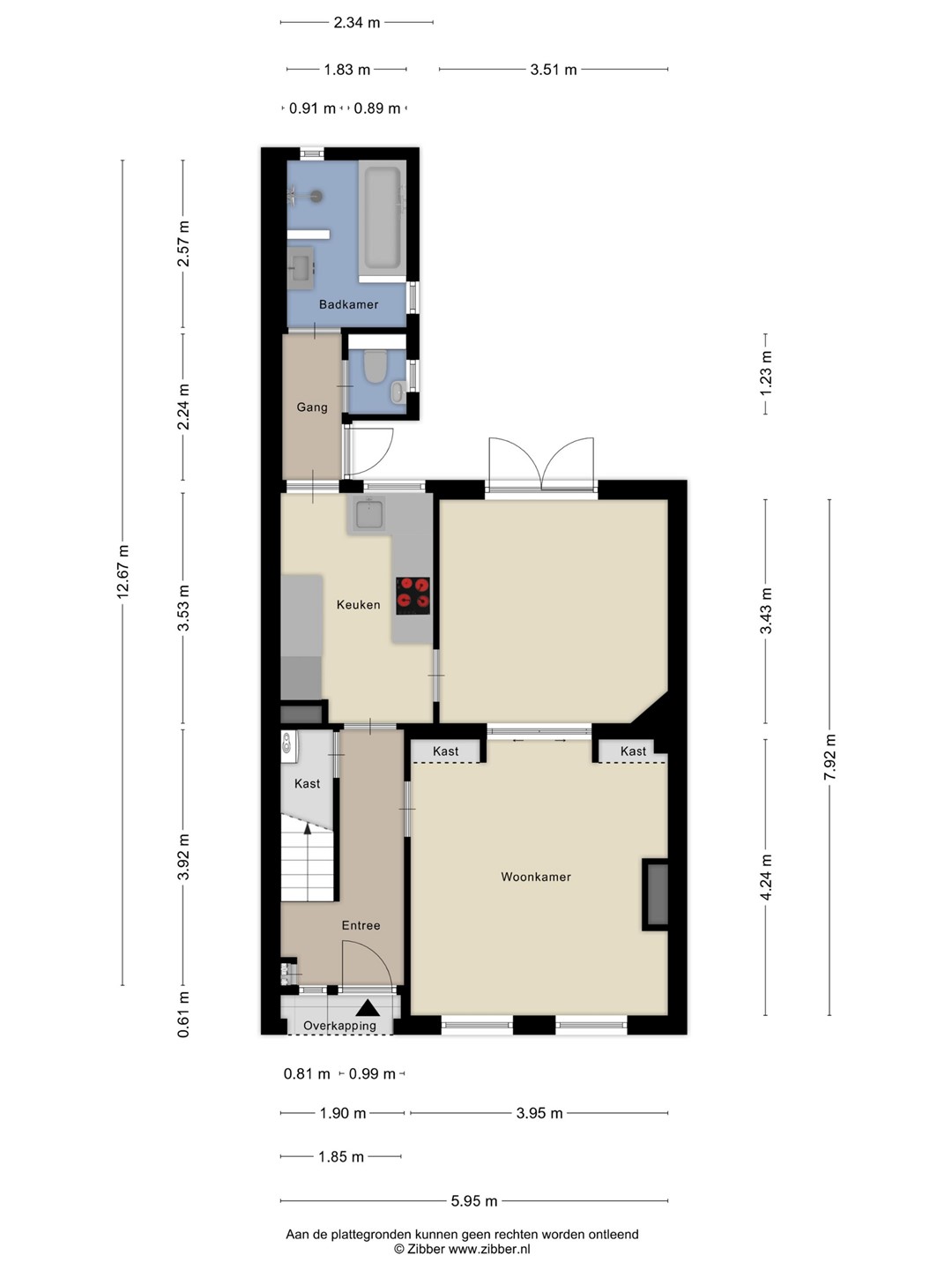
Bij binnenkomst komt u in de hal, waar zich tevens een praktische berging bevindt. Vanuit hier bereikt u de sfeervolle woonkamer en suite, voorzien van mooie schuifdeuren die zorgen voor een prettige scheiding tussen de voor- en achterkamer. Dit geeft de woning een karaktervolle uitstraling en biedt volop mogelijkheden voor een gezellige zit- en eethoek.
De gesloten keuken is uitgevoerd in een neutrale kleurstelling en voorzien van inbouwapparatuur. Deze keuken is in 2020 vernieuwd en sluit perfect aan bij de strakke afwerking van de woning.
Via de gang is er toegang tot het toilet en de badkamer op de begane grond. Deze badkamer is eveneens vernieuwd in 2020 en beschikt over een douche, ligbad en wastafelmeubel.
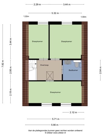
Op de eerste verdieping bevinden zich drie slaapkamers en een tweede badkamer. Deze is praktisch ingericht met een toilet en wastafel, wat extra comfort biedt doordat er ook boven sanitaire voorzieningen aanwezig zijn. Daarnaast is er nog een bergzolder voor extra opslag.
De achtertuin is gelegen op het noorden en biedt een fijne basis om naar eigen wens verder aan te leggen en in te richten.
Energie & comfort
• Energielabel C
• Dak-, vloer- en gevelisolatie
• CV-installatie (2020)
• Mechanische ventilatie aanwezig
• Elektrische kachels op de verdieping
• Vrijwel volledig voorzien van dubbel/HR glas (muv klein raam op bergzolder)
Woonomgeving
De woning is gelegen in een rustige straat, maar toch op loopafstand van het centrum van Terneuzen. Winkels, eetgelegenheden en diverse voorzieningen zijn snel bereikbaar, wat deze locatie bijzonder praktisch maakt.
Kortom
Een instapklare en karakteristieke eindwoning met woonkamer en suite, drie slaapkamers en twee badkamers, op een rustige maar centrale locatie in Terneuzen. Een fijne woning waar u zo in kunt.